Does anyone know how many permits Highpeak Energy got approved this year 2023? Thank you…It seems like they drilled into more of my minerals but I can’t be sure. My check amounts increased like they did when a new well went in in 2022. I don’t know as I’m kinda new to this subject. I know a little but I’m sure there is great wealth of information here…best wishes.
Railroad Commission’s records show HighPeak Energy has gotten 64 drilling permits approved in Howard County so far this year, but that doesn’t mean that many have been drilled at this point.
If you’ll post the location of your mineral interest (Block and Section, or Abstract #) someone should be able to tell you if new permits were approved in your area.
Ok, I will find them, thanks so much.
64? Yikes, we had 2 and now HP has created 8 more. I know for sure we have 390 acres on one plot and another 600 on another, so who knows.
Both in Howard County, Texas: BLK: 25, BINI 18-27 A UNIT, HighPeak Energy, Holdin Sprayberry trend area and BLK: 25, TONY 18-34 B UNIT, HighPeak Energy, Holdin, Sprayberry trend area
Thank you so much…
Is there any way that I can find out if HP is planning any more drilling on our blocks? Or is it a wait and see? Also, my landman told me a couple years ago that everything is moving east, have you heard or seen this in your experiences? Thank you.
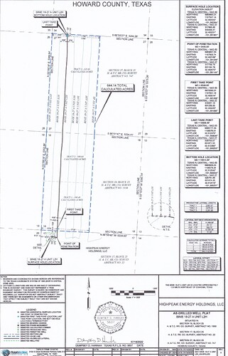
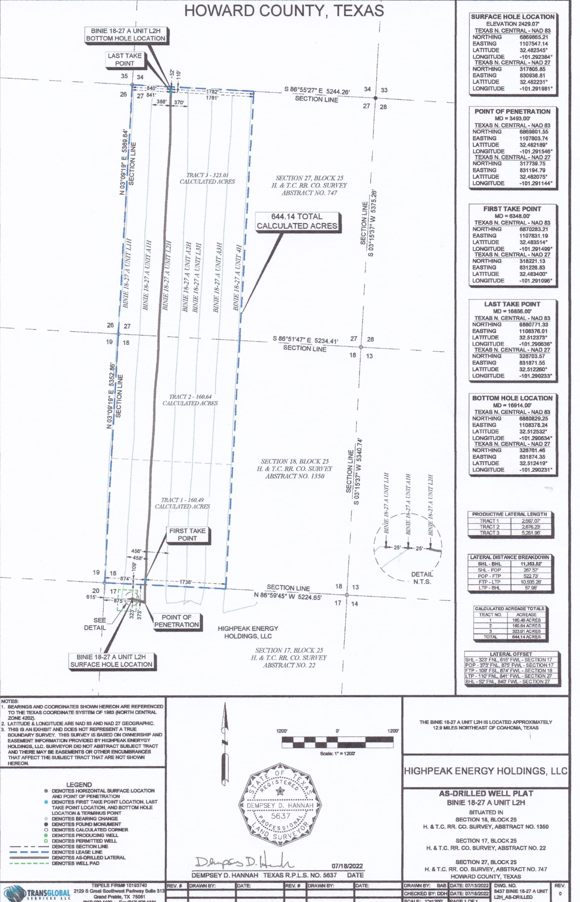
In 2021-22 looks like HighPeak drilled 5 wells in each of those units you mentioned, with the Binie A unit wells covering the west half of Sections 18 & 27, and the Tony B wells covering the west half of those sections and extending on through Section 34.
Below are the plats for what appear to be the last wells they drilled in each of those units which also show the horizontal legs of the previous wells there. Unless they decided to go to narrower spacing it looks like they’ve fully drilled Section 18 & 27.
Dusty!!! Thank you, I’m really impressed with all your care in doing this for my family. I really love this site and have never been let down. I consider this my go to! I’m thankful. My cat is named Dusty, lolol.
Thanks for the feedback. Please take good care of that cat.
This topic was automatically closed after 90 days. New replies are no longer allowed.

